Lidon y Lidon

Elche · Plaza Barcelona · For Sale

78.000€

Elche · Plaza Barcelona · For Sale

Les caractéristiques

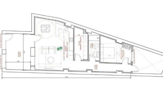
Chambres: 3
Salles de bain: 1
Construit: 112m2
Air-Conditioning
Heating
A/A
Central Heating
Terrace

Emplacement

Faire une demande

Responsable del tratamiento: Lidon y Lidon, Finalidad del tratamiento: Gestión y control de los servicios ofrecidos a través de la página Web de Servicios inmobiliarios, Envío de información a traves de newsletter y otros, Legitimación: Por consentimiento, Destinatarios: No se cederan los datos, salvo para elaborar contabilidad, Derechos de las personas interesadas: Acceder, rectificar y suprimir los datos, solicitar la portabilidad de los mismos, oponerse altratamiento y solicitar la limitación de éste, Procedencia de los datos: El Propio interesado, Información Adicional: Puede consultarse la información adicional y detallada sobre protección de datos Aquí.
Similar properties
WhatsApp